Salon with boutique perspective elevation and floor plan details dwg file
Description
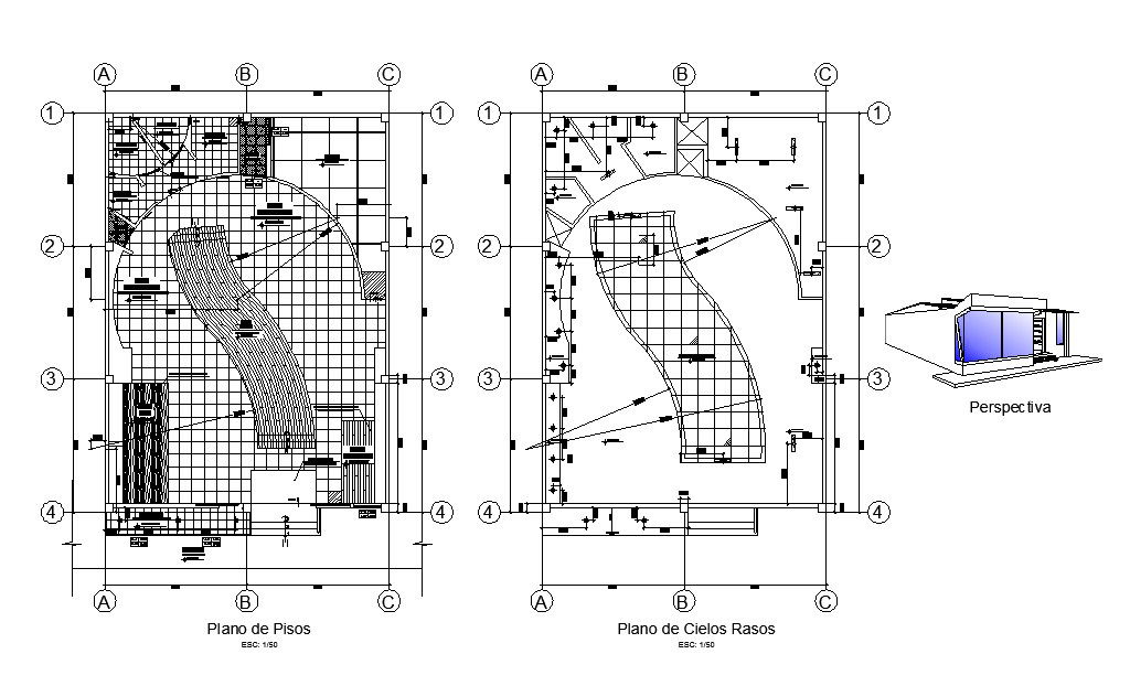
Salon with boutique perspective elevation and floor plan details that includes a detailed view of flooring view, doors and windows view, staircase view, balcony view, wall design, dimensions, roof or terrace view, spa area, furniture layout plan, interior details and much more of salon details.
File Type:
DWG
File Size:
1.9 MB
Category::
Interior Design
Sub Category::
Salon And Beauty Parlour Interior Design
type:
Gold
Uploaded by:

