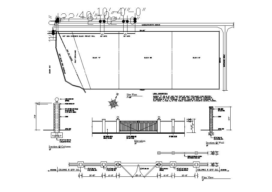
Perimeter fence and gate elevation, section, plan and structure details dwg file
Description
Perimeter fence and gate elevation, section, plan and structure details that includes a detailed view of gate elevation details, sectional details, dimensions details, plan details, material details, footings details, design details, scale details, supportive wall details, area details, foundation details and much more of fence details.
Uploaded by:

