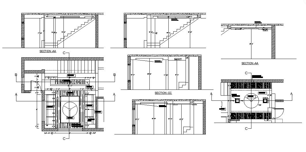
House constructive section, framing plan and auto-cad details dwg file
Description
House constructive section, framing plan and auto-cad details that includes a detailed view of flooring view, wall construction, memory of materials, footings details, column view, beam construction, covers closure type, soil burried wall closure , exterior solera, holes, wood posts, joints, decking, grider pre-engineering, steel pipe column, play joints, existing floor joints, knee wall, steel pipe column, beam schedule details and much more of house details.
Uploaded by:

