Garden fence elevation, section, plan and construction details dwg file
Description
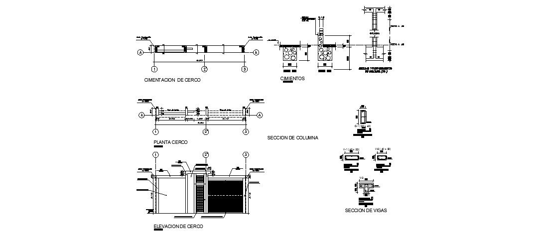
Garden fence elevation, section, plan and construction details that includes a detailed view of fence elevation details, sectional details, dimensions details, plan details, material details, footings details, design details, scale details, supportive wall details, area details, foundation details, construction details and much more of fence details.
Uploaded by:

