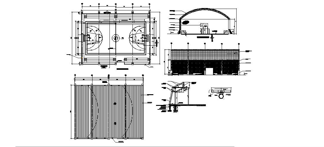
Sports court section, cover plan and sports ground details dwg file
Description
Sports court section, cover plan and sports ground details that includes a detailed view of front section with main gate, dimensions details, wall details, line details, measures details, construction details, structure details and much more of sports court details.
Uploaded by:

