Water filter plant basement floor plan cad drawing details dwg file
Description
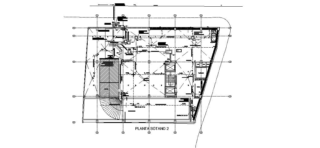
Water filter plant basement floor plan cad drawing details that includes a detailed view of main entry gate, security check area, garden area, loading area details, parking area, machinery details, processing plant details, administration office details, mess area details, dimensions details, departmental processing plants details, cotrol room, labour area, kitchen, dining area, departmental offices, csr department and much more of water treatment plant details.
Uploaded by:

