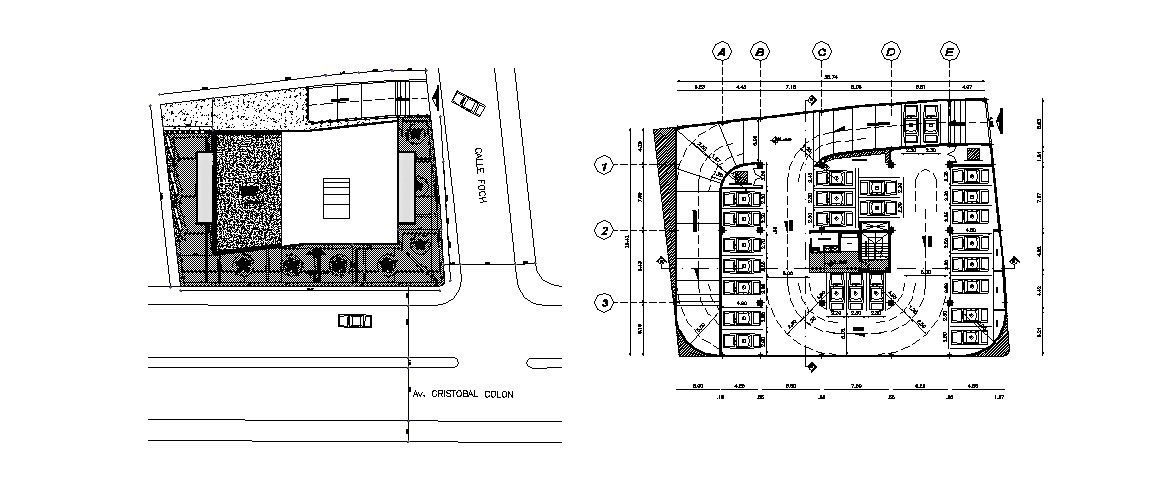
Mixed used building high rise site plan and location map details dwg file
Description
Mixed used building high rise site plan and location map details that includes a detailed view of wide roads, garden area details, landmarks, building space, dimensions details and much more of site plan details.
Uploaded by:

