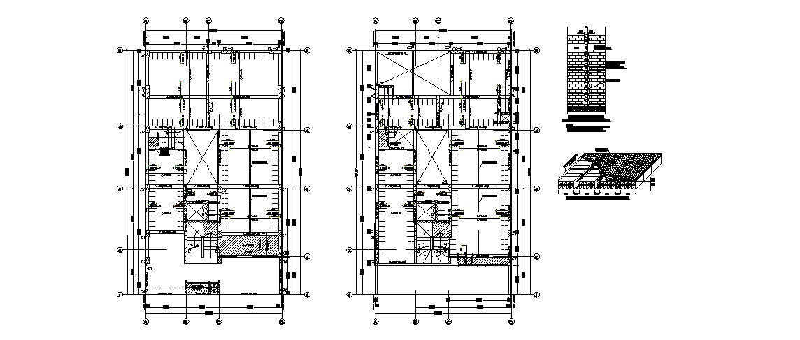
Framing plan of floors, brick wall and constructive structure details dwg file
Description
Framing plan of floors, brick wall and constructive structure details that includes a detailed view of wood posts, joints, decking, grider pre-engineering, steel pipe column, play joints, existing floor joints, knee wall, steel pipe column, beam schedule details, dimensions details, layer- wall core polystyrene base material thickness of, layer-3 of wall of "to the base of concrete of thickness, concrete chain, rebar steel rod ", stirrup for chain frame " and much more of structure details.
Uploaded by:

