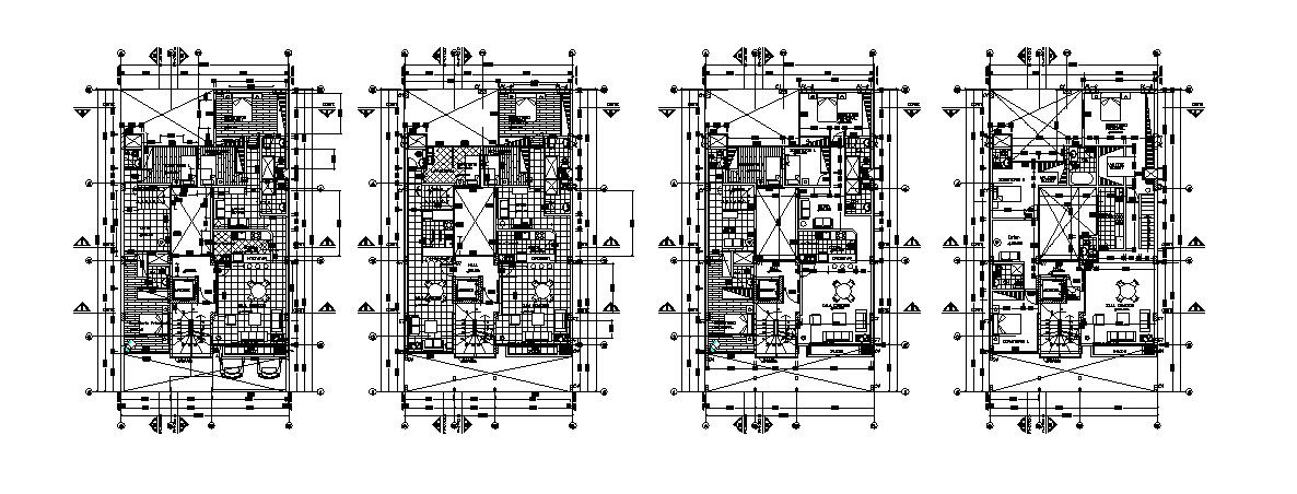
Floor plan distribution details of multi-family apartment building cad drawing details dwg file
Description
Floor plan distribution details of multi-family apartment building cad drawing details that includes a detailed view of ground floor, first floor and terrace with main entry gate, mini garden, car parking view, main entry house door, drawing room, living room, family hall, kitchen, dining area, indoor staircases, laundry area, balcony, bedroom, master bedroom, toilets and bathroom, indoor doors, furniture details and much more of house building floor plan.
Uploaded by:

