Corporate building floor plan and framing plan cad drawing details dwg file
Description
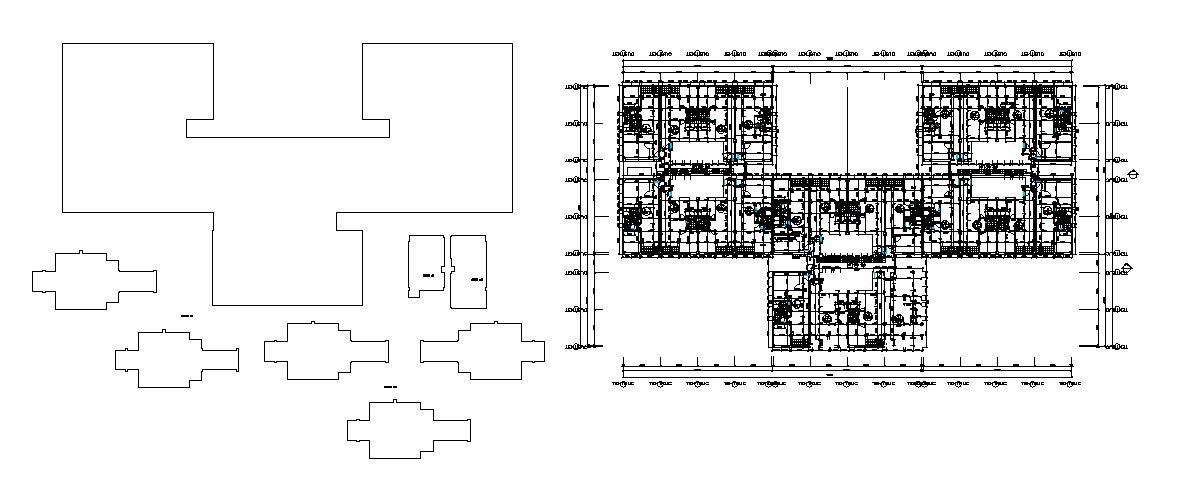
Corporate building floor plan and framing plan cad drawing details that includes a detailed view of wood posts, joints, decking, grider pre-engineering, steel pipe column, play joints, existing floor joints, knee wall, steel pipe column, beam schedule details, dimensions details, measures, reception area, waiting area, cabin, bottom false ceiling, computer lab, bottom of grid ceiling, counselling room and library, conference room, manager cabin, meeting room and much more of corporate building details.
Uploaded by:

