Multi-family residential building framing plan and floor distribution plan details dwg file
Description
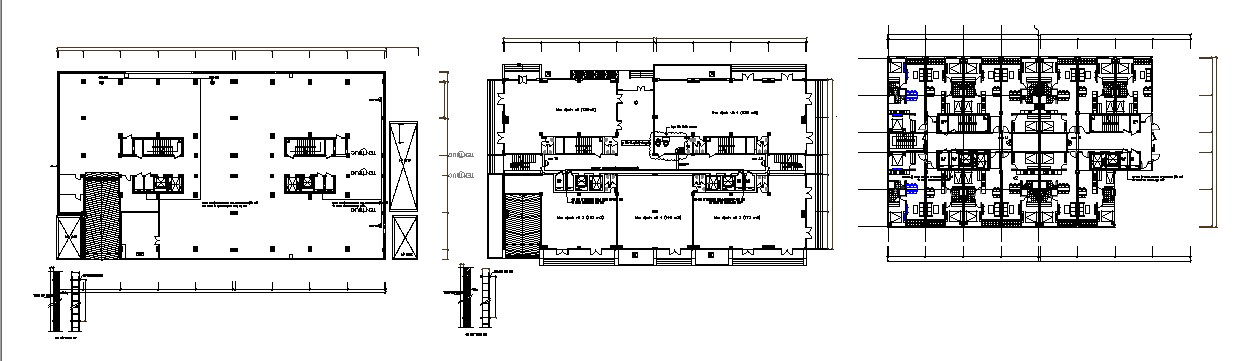
Multi-family residential building framing plan and floor distribution plan details that includes a detailed view of wood posts, joints, decking, grider pre-engineering, steel pipe column, play joints, existing floor joints, knee wall, steel pipe column, beam schedule details, main entry house door, drawing room, living room, family hall, kitchen, dining area, indoor staircases, laundry area, balcony, bedroom, master bedroom, toilets and bathroom, indoor doors, furniture details and much more of apartment project.
Uploaded by:

