Madan house detailed architecture project with water tank dwg file
Description
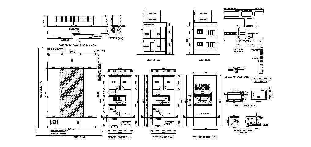
Madan house detailed architecture project with water tank that includes a detailed view of flooring view, doors and windows view, staircase sectional details, balcony view, wall sections and dimensions details with main entry gate, mini garden, car parking view, main entry house door, drawing room, living room, family hall, kitchen, dining area, indoor staircases, laundry area, balcony, bedroom, master bedroom, toilets and bathroom, indoor doors, furniture details, septic tank details, and much more of house project.
Uploaded by:

