autocad drawing of three story residential house
Description
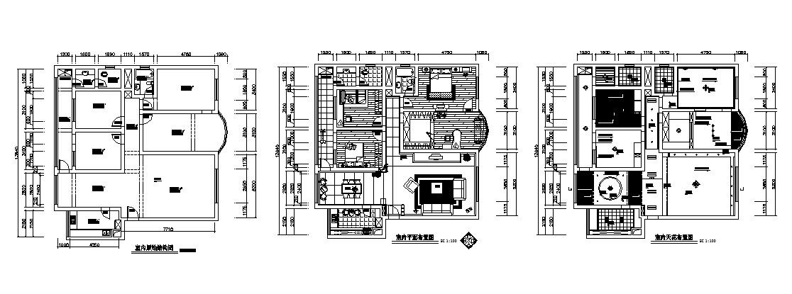
autocad drawing of three story residential house includes detail view of flooring , doors and window detail and dimensions details of main house. Room detail such as drawing, bedroom and kitchen with dining area detailing, bathroom and toilet with indoor doors and its also includes furniture details in drawing.

Uploaded by:
Eiz
Luna

