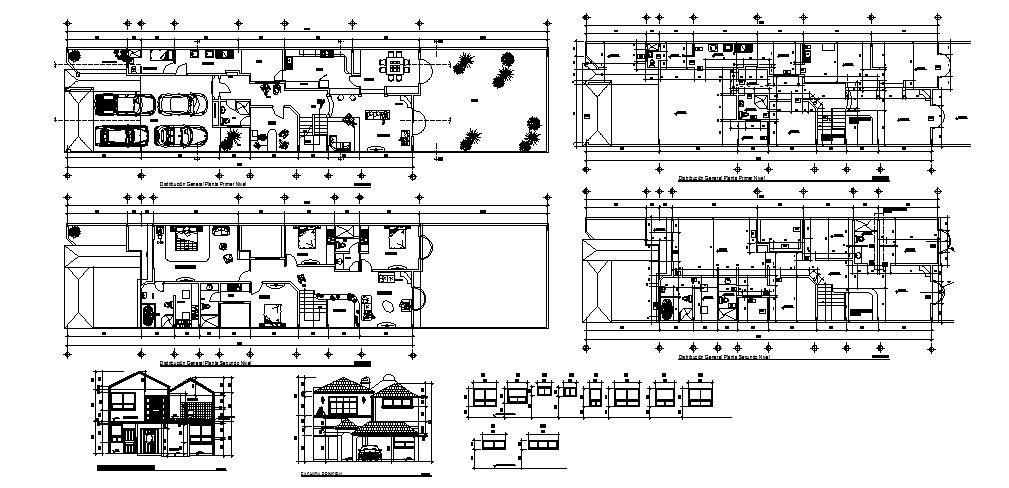
Autocad drawing of bungalow 39.85mtr x 8.75mtr with different section view
Description
Autocad drawing of bungalow 39.85mtr x 8.75mtr with different section view which includes details of Main room, bedrooms, study room, kitchen with dining, bathroom, toilet, etc it also gives detail about garden and parking space.

Uploaded by:
Eiz
Luna

