2 Story Commercial Office Building Plans In AutoCAD Files
Description
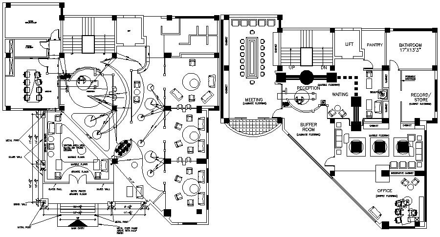
2 Story Commercial Office Building Plans In AutoCAD Files which provide details of ground floor plan, first floor plan, details of reception, waiting area with glass on truss ceiling, meeting room, store room, lift, marble floor, and it also provide detail of furniture.

Uploaded by:
Eiz
Luna
