Guest House Floor Plans In DWG File
Description
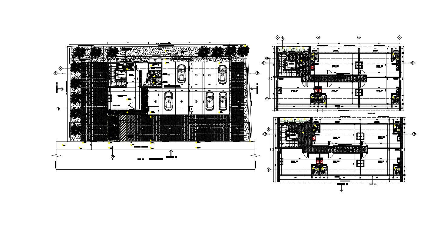
Guest House Floor Plans In DWG File with detail dimensions of reception area, waiting area, rooms, washroom, toilet, it also includes detail of elevator, detail of parking area.

Uploaded by:
Eiz
Luna

Uploaded by:
Luna