Hostel Drawing In AutoCAD File
Description
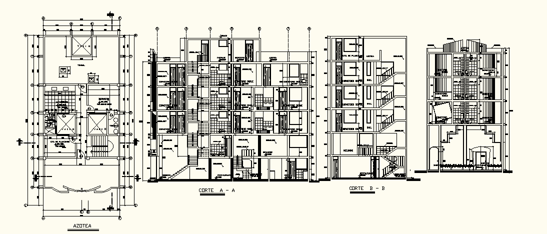
Hostel Drawing In AutoCAD File which includes detail of different floor level, detail of different section, detail of staircase, detail of cafe area, detail of lobby.

Uploaded by:
Eiz
Luna

Uploaded by:
Luna