Villa Plan Design In DWG File
Description
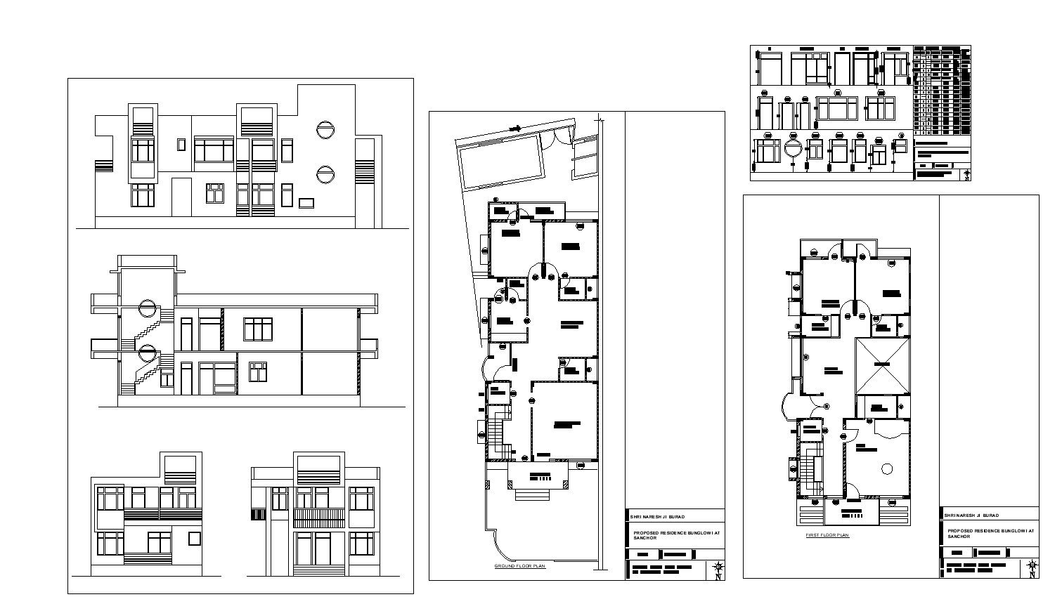
Villa Plan Design In DWG File which provides detail of ground floor, first floor, floor level, detail dimension of the drawing room, bedroom, kitchen with dining area, bathroom, toilet, etc it also gives detail of lawn area, furniture,

Uploaded by:
Eiz
Luna

