LOGIN
HOME
CATEGORIES
UPLOAD FILE
PRICING
HOUSE PLAN
ABOUT US
CONTACT US
Building Elevation In DWG File
Home
Categories
Architecture
Apartment Drawing
Building Elevation In DWG File
Uploaded by:
Eiz
Luna
View Profile
View Profile
Description
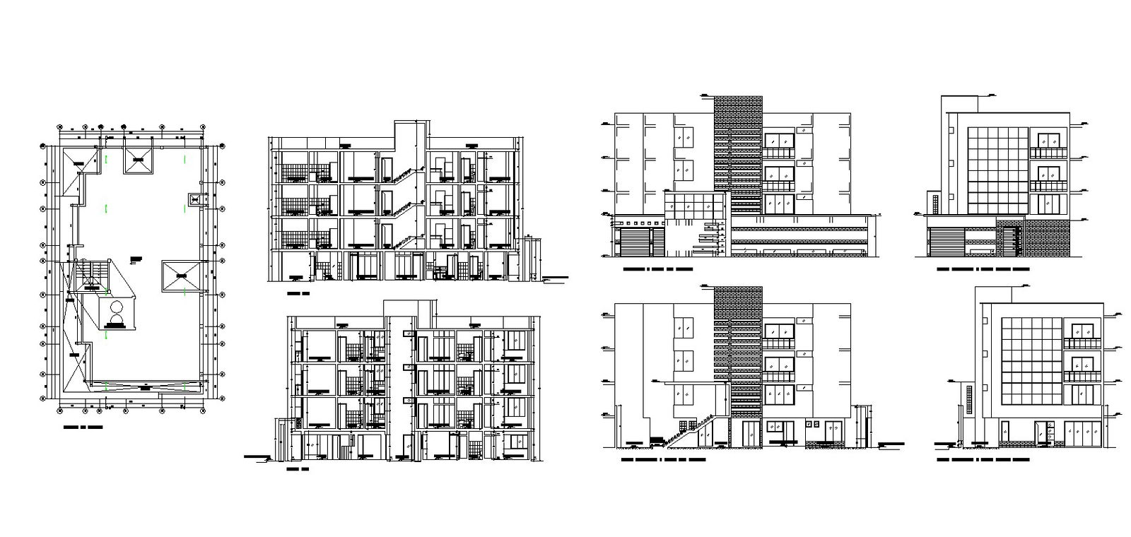
Building Elevation In DWG File which provides detail of front elevation, side elevation, detail of floor level, detail of doors and windows, detail of parking space,
File Type:
DWG
File Size:
1.5 MB
Category::
Architecture
Sub Category::
Apartment Drawing
type:
Gold
Uploaded by:
Eiz
Luna
View Profile
Download
Add to libary
find Latest
Related
Files