LOGIN
HOME
CATEGORIES
UPLOAD FILE
PRICING
HOUSE PLAN
ABOUT US
CONTACT US
Furniture Details In AutoCAD File
Home
Categories
Architecture
Corporate Building
Furniture Details In AutoCAD File
Uploaded by:
Eiz
Luna
View Profile
View Profile
Description
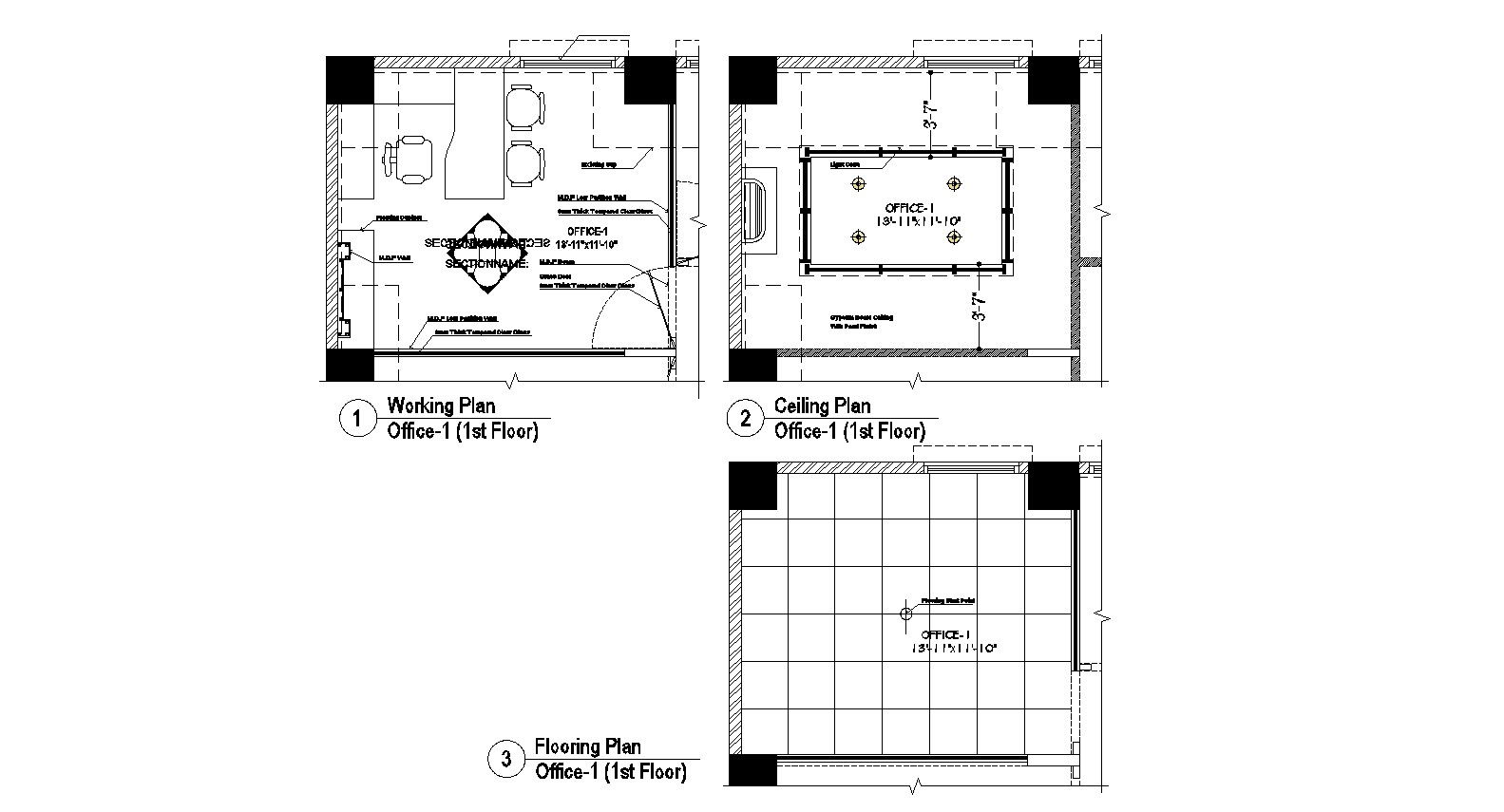
Furniture Details In AutoCAD File which provides details of the interior design of office, detail of ceiling plan, flooring plan, etc.
File Type:
DWG
File Size:
356 KB
Category::
Architecture
Sub Category::
Corporate Building
type:
Gold
Uploaded by:
Eiz
Luna
View Profile
Download
Add to libary
find Latest
Related
Files