Hospital Building Plan In AutoCAD File
Description
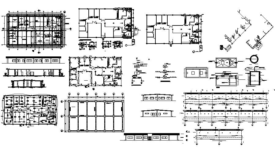
Hospital Building Plan In AutoCAD File which includes detail of front elevation, back elevation, side elevation, detail of different section, detail dimension of electric layout, reception area, multipurpose room, waiting room, consulting room, laboratory room, dentistry area, etc it also gives top view of hospital.

Uploaded by:
Eiz
Luna
