Hotel Building Elevation In AutoCAD File
Description
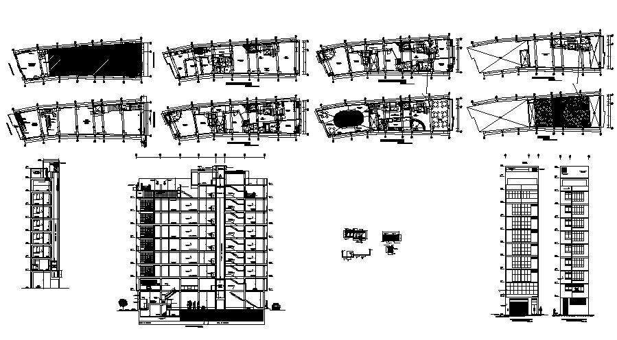
Hotel Building Elevation In AutoCAD File which includes detail of front elevation, back elevation, side elevation, detail of different section, detail of floor level, detail dimension of reception area, waiting area, restaurant area, rooms, passage, kitchen area, washroom, toilet, it also gives detail of furniture.

Uploaded by:
Eiz
Luna

