Drawing of a commercial building with different elevation in dwg file
Description
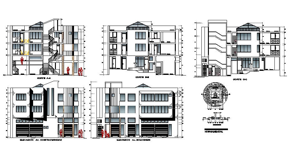
Drawing of a commercial building with different elevation in dwg file which provides detail of front elevation, side elevation, floor level, detail of garden area, detail of main entrance, etc it also gives detail of Doors and window.

Uploaded by:
Eiz
Luna

