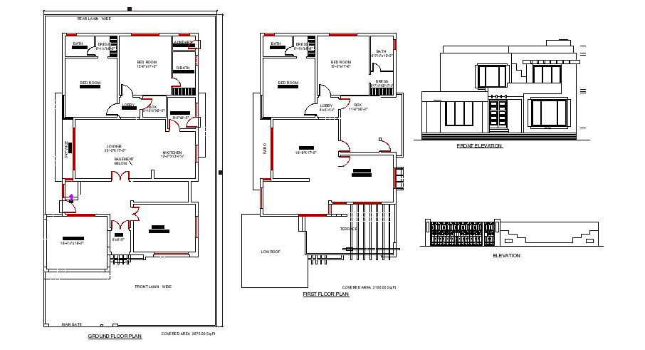
Plan of the house with different elevation in dwg file
Description
Plan of the house with different elevation in dwg file which provides detail of front elevation, detail dimension of the living room, bedroom, kitchen, dining room, bathroom, toilet, etc it also gives detail of lawn area.

Uploaded by:
Eiz
Luna

