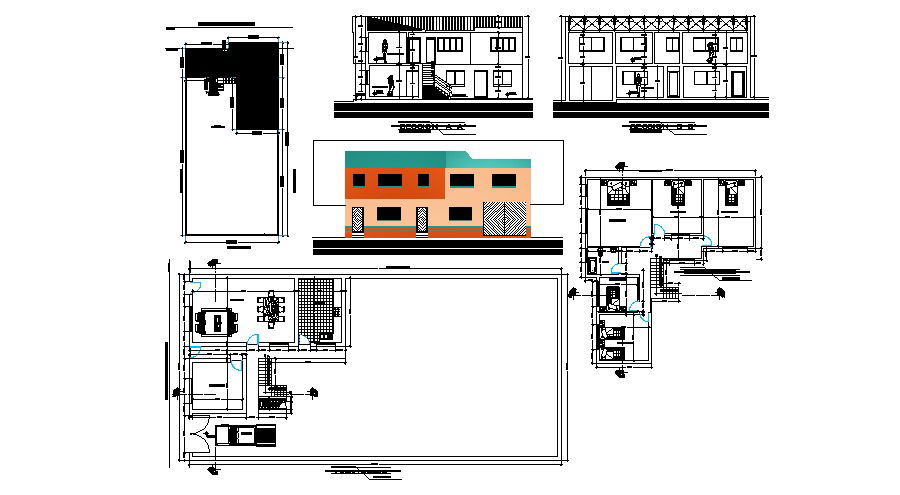
Drawing of Bungalow 30mtr x 15mtr with section and elevation in AutoCAD
Description
Drawing of Bungalow 30mtr x 15mtr with section and elevation in AutoCAD which includes detail of front elevation, different section, detail dimension of the garden area, living room, bedroom, kitchen with dining area, bathroom, toilet, etc it also gives detail of car parking

Uploaded by:
Eiz
Luna

