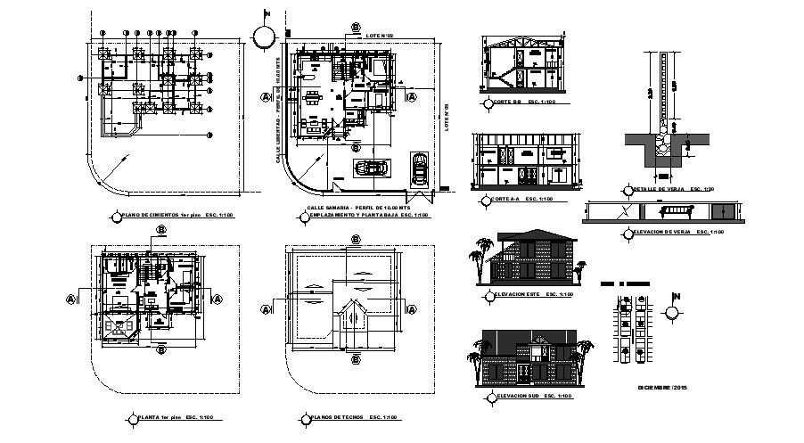
Construction Plan of Bungalow 20.00mtr x 20.00mtr with foundation details in AutoCAD
Description
Construction Plan of Bungalow 20.00mtr x 20.00mtr with foundation details in AutoCAD which includes detail of different elevation, different section, detail dimension of lawn area, car parking, hall, bedroom, kitchen, dining room, bathroom, toilet, etc

Uploaded by:
Eiz
Luna

