Plan of bungalow 11.00mtr x 15.00mtr with the electric layout in dwg file
Description
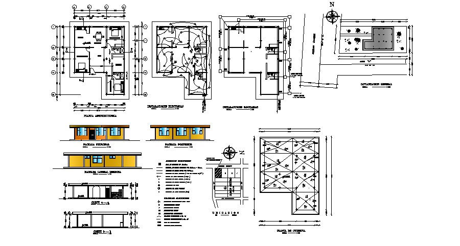
Plan of bungalow 11.00mtr x 15.00mtr with the electric layout in dwg file which includes detail of different section and elevation, detail of electric layout plan, sanitary layout plan, detail dimension of the Drawing room, bedroom, kitchen, dining room, bathroom, etc.

Uploaded by:
Eiz
Luna
