LOGIN
HOME
CATEGORIES
UPLOAD FILE
PRICING
HOUSE PLAN
ABOUT US
CONTACT US
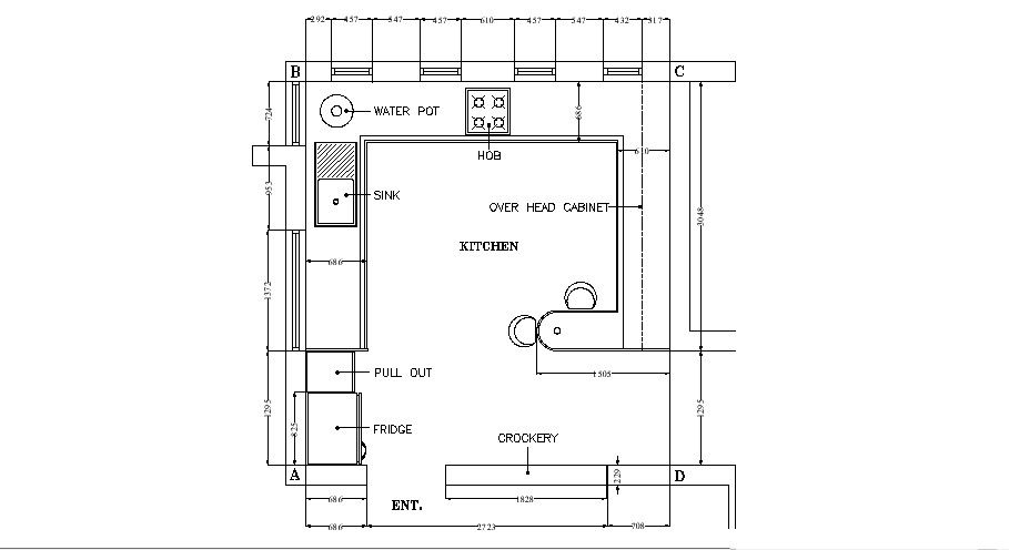
Drawing of Kitchen with detail dimension in dwg file
Home
Categories
Architecture
House Plan
Drawing of Kitchen with detail dimension in dwg file
Uploaded by:
Eiz
Luna
View Profile
View Profile
Description
Drawing of Kitchen with detail dimension in dwg file which provides detail of overhead cabinet, crockery, sink, water pot, fridge, etc.
File Type:
DWG
File Size:
62 KB
Category::
Architecture
Sub Category::
House Plan
type:
Gold
Uploaded by:
Eiz
Luna
View Profile
Download
Add to libary
find Latest
Related
Files