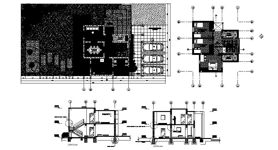
Drawing of Bungalow 15.00mtr x 30.00mtr with section and elevation in AutoCAD
Description
Drawing of Bungalow 15.00mtr x 30.00mtr with section and elevation in AutoCAD which provide detail of different elevation, different section, detail dimension of the hall, bedroom, kitchen, dining room, bathroom, toilet, etc it also gives detail of garden area, passage, furniture, floor level.

Uploaded by:
Eiz
Luna
