2 storey residential house with detail dimension in dwg file
Description
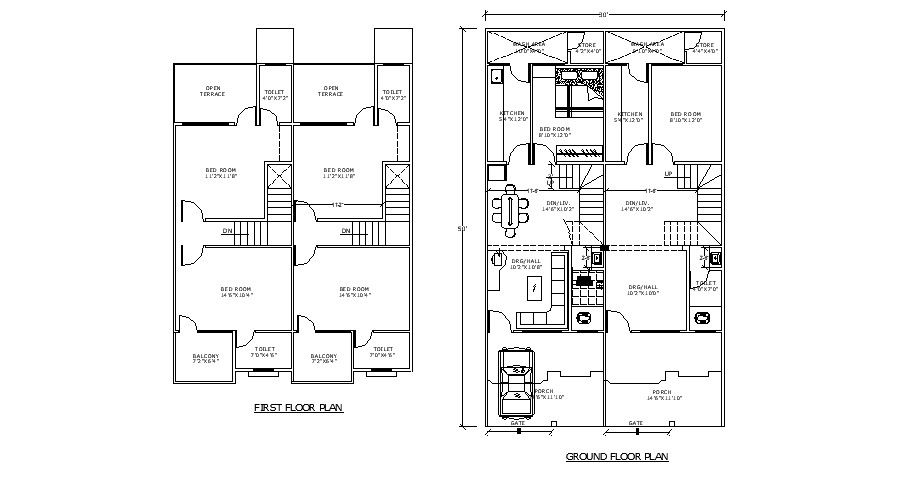
2 storey residential house with detail dimension in dwg file which includes detail of ground floor, first floor, detail dimension of porch area, living room, bedroom, kitchen, dining area, store room, wash area, toilet, etc.

Uploaded by:
Eiz
Luna

