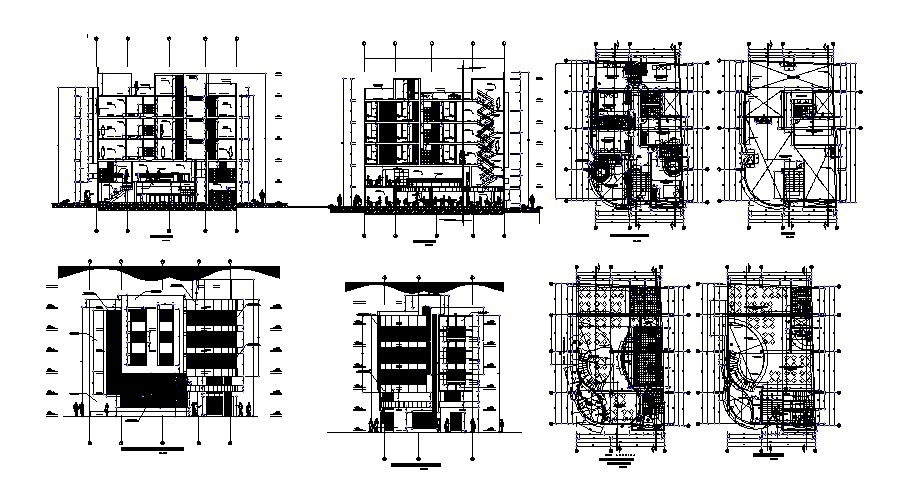
5 storey hotel building 10.90mtr x 18.25mtr plan in dwg file
Description
5 storey hotel building 10.90mtr x 18.25mtr plan in dwg file which provides detail of different section and elevation, detail of floor level, detail dimension of the reception area, hall, cafe area, waiting hall, kitchen area, rooms, washroom, toilet, etc it also gives detail of furniture.

Uploaded by:
Eiz
Luna

