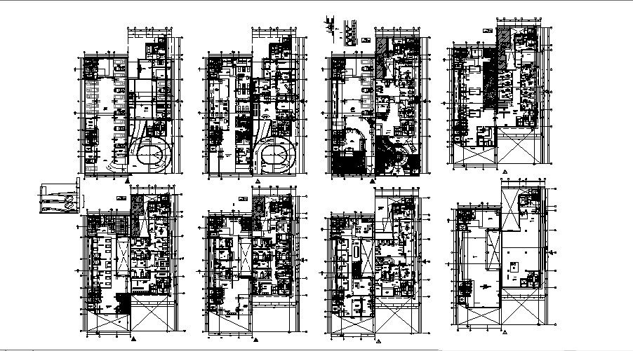
Floor plan of clinic 16.00mtr x 50.00mtr with detail dimension in dwg
Description
Floor plan of clinic 16.00mtr x 50.00mtr with detail dimension in dwg file which includes detail of lawn area, car parking, passage, waiting room, reception area, detail of different department in the clinic.

Uploaded by:
Eiz
Luna

