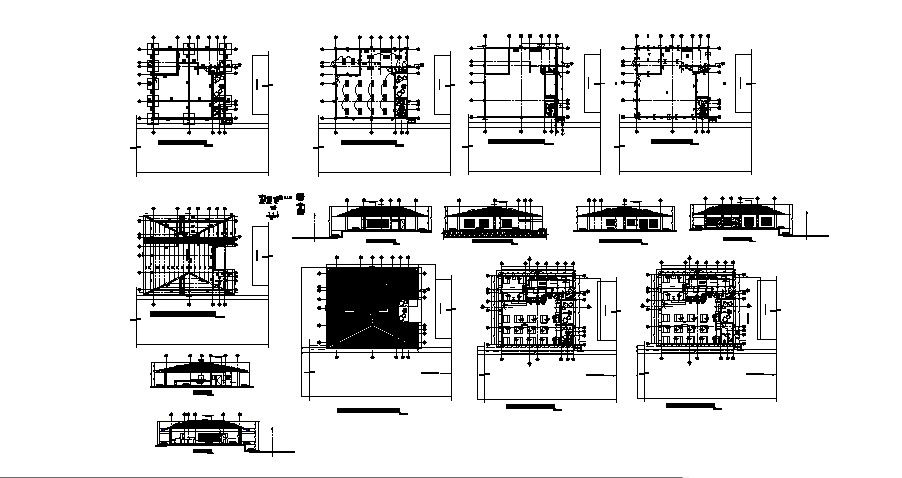
Drawing of coffeehouse 15.05mtr x 14.50mtr with section and elevation in dwg file
Description
Drawing of coffeehouse 15.05mtr x 14.50mtr with section and elevation in dwg file which provides detail of front elevation, side elevation, back elevation, detail dimension of the garden area, cafe area, sitting hall, kitchen, WC and bath, etc it also includes detail of foundation structure.

Uploaded by:
Eiz
Luna

