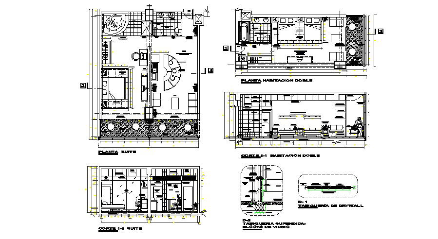
Plan of Fivestar hotel room8.65mtr x 11.29mtr with furniture details in dwg file
Description
Plan of Fivestar hotel room8.65mtr x 11.29mtr with furniture details in dwg file which includes detail of different sections, detail of drywall, detail dimension of the bedroom area, sitting area, kitchen area, bathroom, and toilet, etc.

Uploaded by:
Eiz
Luna

