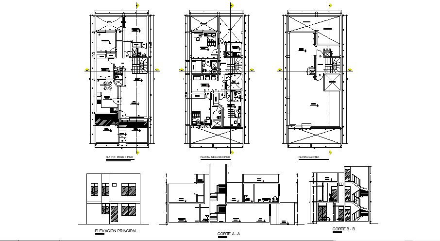
Plan of 2 storey house 7.50mtr x 18.00mtr in dwg file
Description
Plan of 2 storey house 7.50mtr x 18.00mtr in dwg file which provides detail dimension of the garden area, living room, bedroom, kitchen, dining room, bathroom, toilet, etc it also provides detail of floor level, staircase, etc.

Uploaded by:
Eiz
Luna

