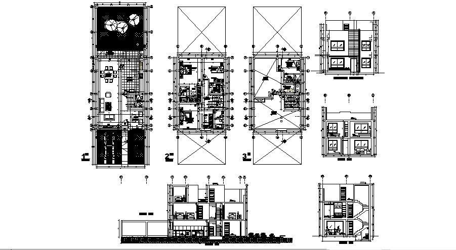
Plan of house 7.55mtr x 11.43mtr with section and elevation in dwg file
Description
Plan of house 7.55mtr x 11.43mtr with section and elevation in dwg file which provides detail of floor level, different section, detail dimension of the hall, bedroom, kitchen, dining room, bathroom, toilet, etc it also gives detail of furniture.

Uploaded by:
Eiz
Luna

