2 storey residential apartment 14.00mtr x 21.00mtr in AutoCAD
Description
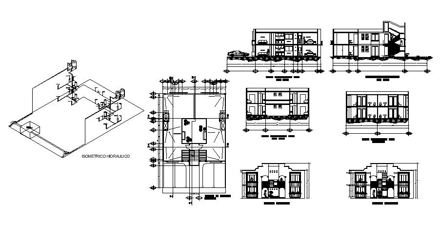
2 storey residential apartment 14.00mtr x 21.00mtr in AutoCAD which provide detail of front elevation, side elevation, different sections, etc it also gives detail of hall, bedroom, kitchen, dining room, bathroom, toilet, car parking.

Uploaded by:
Eiz
Luna

