2 storey house 15.00mtr x 8.00mtr with section and elevation in dwg file
Description
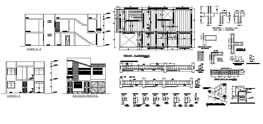
2 storey house 15.00mtr x 8.00mtr with section and elevation in dwg file which provides detail of different section, front elevation, side elevation, etc it also gives detail of foundation structure, detail of floor level.

Uploaded by:
Eiz
Luna

