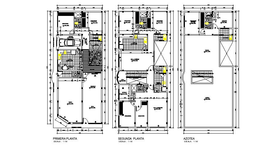
Floor plan of residential house 8.00mtr x 20.00mtr with detail dimension in dwg file
Description
Floor plan of residential house 8.00mtr x 20.00mtr with detail dimension in dwg file which provides detail of hall, bedroom, kitchen with dining room, bathroom, toilet, garden area, car parking, etc it also gives detail of terrace plan.

Uploaded by:
Eiz
Luna

