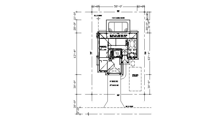
Plan of residential house 80' x 125' with detail dimension in dwg file
Description
Plan of residential house 80' x 125' with detail dimension in dwg file which provides detail of finished floor elevation, concrete walk, concrete drive, septic system, an edge of the pavement, etc.

Uploaded by:
Eiz
Luna

