Floor plan of the house with detail dimension in AutoCAD file
Description
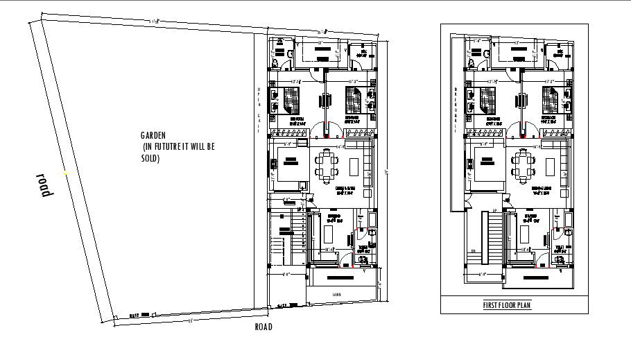
Floor plan of the house with detail dimension in AutoCAD file which provides detail of balcony, garden area, drawing room, bedroom, kitchen with dining room, bathroom, toilet, etc it also gives detail of furniture.

Uploaded by:
Eiz
Luna

