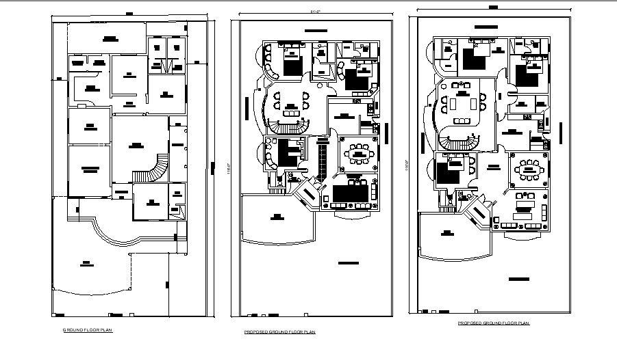
Plan of residential house 61' x 116' with furniture detail in AutoCAD file
Description
Plan of residential house 61' x 116' with furniture detail in AutoCAD file which includes detail of drawing room, bedroom, kitchen, dining room, lounge, guest room, bathroom, toilet, etc it also provide lawn area, porch.

Uploaded by:
Eiz
Luna

