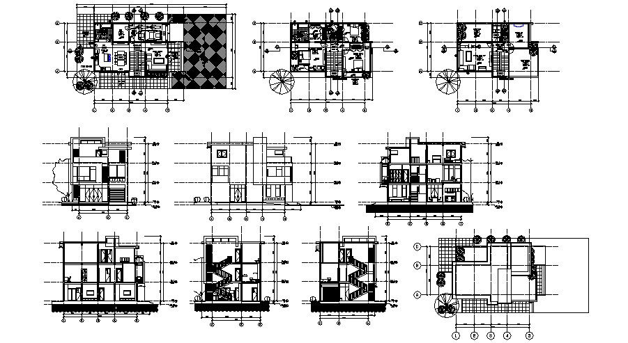
Design of 3 storey bungalow 25.500mtr x 12.700mtr with section and elevation in dwg file
Description
Design of 3 storey bungalow 25.500mtr x 12.700mtr with section and elevation in dwg file which provides detail front elevation, side elevation, different section, floor level, detail dimension of the hall, bedroom, kitchen with dining area, WC and bath, etc it also gives full detail of furniture, terrace

Uploaded by:
Eiz
Luna

