3 storey residential house with 15.90mtr 7.79mtr with elevation and section in dwg file
Description
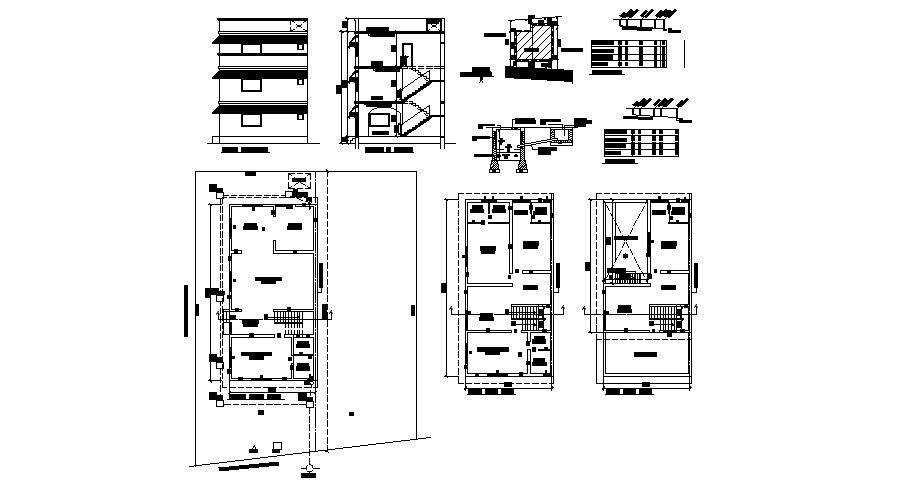
3 storey residential house with 15.90mtr 7.79mtr with elevation and section in dwg file which provides detail of front elevation, detail dimension of the drawing room, bedroom, kitchen with dining room, bathroom, toilet, etc.

Uploaded by:
Eiz
Luna

