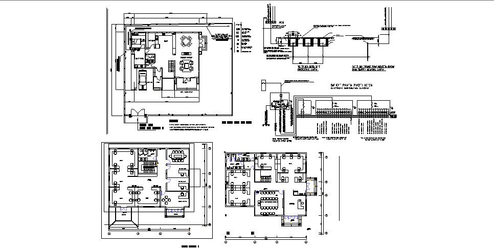
Electric layout plan of villa 18.20mtr x 18.40mtr with detail dimension in AutoCAD
Description
Electric layout plan of villa 18.20mtr x 18.40mtr with detail dimension in AutoCAD which provide detail of electric unit, detail dimension of the reception area, meeting room, office area, hall, bedroom, kitchen area, garage, etc.

Uploaded by:
Eiz
Luna

