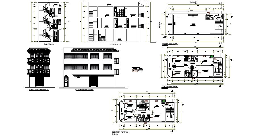
Plan of 3 storey residential house 13.40mtr x 5.00mtr with section and elevation in dwg file
Description
Plan of 3 storey residential house 13.40mtr x 5.00mtr with section and elevation in dwg file which provides detail of front elevation, side elevation, different section, detail dimension of the hall, bedroom, kitchen with dining area, WC and bath, etc.

Uploaded by:
Eiz
Luna

