Architectural plan of the house with the electric layout in dwg file
Description
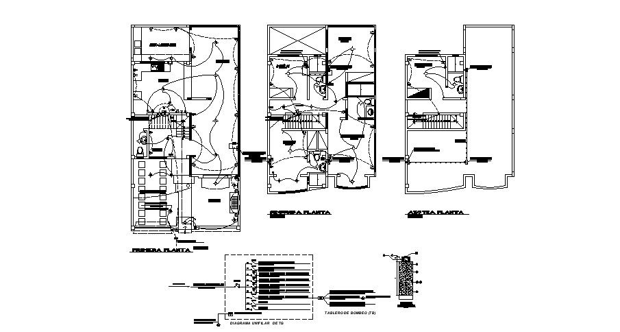
Architectural plan of the house with the electric layout in dwg file which provides detail of electric layout, detail dimension of the hall, bedroom, kitchen, dining area, bathroom, toilet, etc it also gives detail of unifilar diagram.

Uploaded by:
Eiz
Luna

