Architectural plan of guest house with detail dimension in dwg file
Description
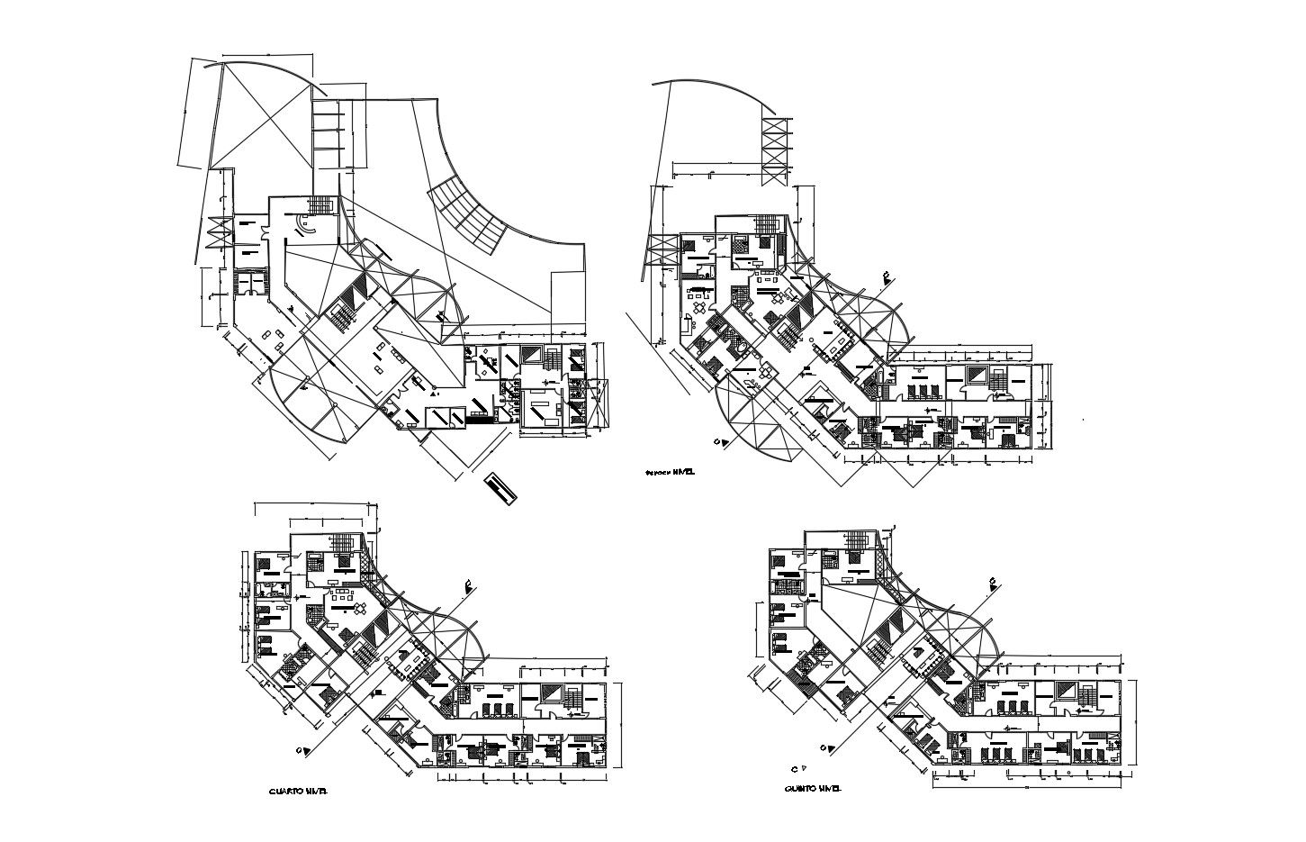
Architectural plan of the guest house with detail dimension in dwg file which provides detail dimension of waiting hall, bedrooms, passage, balcony, bathroom, toilet, etc it also gives full detail of furniture.

Uploaded by:
Eiz
Luna

