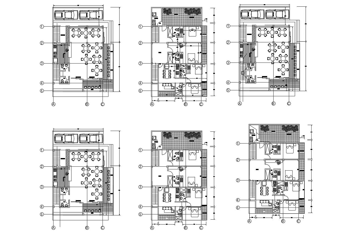
Plan of the hotel building with detail dimension in dwg file
Description
Plan of the hotel building with detail dimension in dwg file which provides detail of hall, rooms, restaurant area, kitchen area, bathroom, toilet, etc it also provide detail of car parking, garden area.

Uploaded by:
Eiz
Luna

