Drawing of the hotel building with foundation plan in AutoCAD
Description
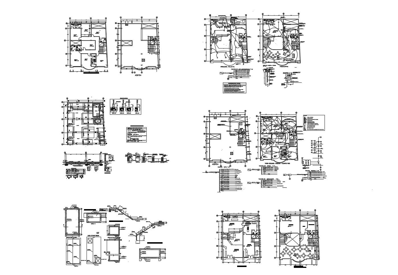
Drawing of the hotel building with foundation plan in AutoCAD which provide detail of electric layout plan, sanitary layout plan, foundation structure, detail dimension of the reception area, restaurant area, lobby, hall, rooms, WC, and bath, etc.

Uploaded by:
Eiz
Luna

